推薦產品
河南華東起重機械設備公司
服務熱線:400 086 9590
公司:河南華東起重機械設備有限公司
聯系人:賈經理
聯系電話:13903802779
地址:河南新鄉市封丘縣起重機工業園區
當前位置: 起重機 > 起重產品 > 門式起重機
MGU型集裝箱門式起重機|MU型集裝箱門式起重機
MGU型集裝箱門式起重機|MU型集裝箱門式起重機廠家直銷: MGU型集裝箱門式起重機多少錢一臺?聯系MGU型集裝箱門式起重機生產廠家報價!專業MGU型集裝箱門式起重機廠家直銷,MGU型集裝箱門式起重機圖片、MGU型集裝箱門式起重機型號、MGU型集裝箱門式起重機規格參數,購買MGU型集裝箱門式起重機價格!<BR/>MGU型集裝箱門式起重機為半定制機械,需根據您的現場條件和需求確定軌道尺寸和其他參數。
MGU型集裝箱門式起重機也有MGU型雙梁吊鉤門式起重機、軌道式集裝箱門式起重機、雙梁U型吊鉤門式起重機、U型集裝箱門式起重機等叫法。
集裝箱門式起重機介紹:
集裝箱門式起重機由于集裝箱需要通過兩側門腿內空間,所以門腿內的寬度間距凈空較大。門腿承載主梁的形式為U型,集裝箱門式起重機一般采用門腿上部敞開成“U”形和門腿上部連通成“Π”形。
集裝箱門式起重機規格型號:
集裝箱起重機型號:MGU型、MU型、U型;
常用額定起重量:10噸、16/3.2噸、20/5噸、20/10噸、40/10噸、50/10噸、40.5噸等規格;
常用跨度:18米、20米、22米、26米、30米、35米等規格;
常用起升高度:9米、10米、11米、12米、13米等規格;
以上規格非固定,可根據用戶實際使用要求設計生產,還可非標定做起重機。
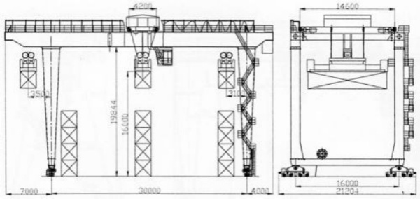
集裝箱門式起重機尺寸圖紙:
集裝箱門式起重機功能作用:
MGU型門機因兩個過腿空間比較大,適用于體積較大的物品的搬運工作。另外可以拓展吊具從事多種貨物的吊運,配套集裝箱專業吊具、配套電磁吸盤、配套抓斗等專業門式起重機。
集裝箱門式起重機適用范圍:
軌道式集裝箱門式起重機用途:裝箱鐵路轉運場、港口碼頭、鋼材市場、礦業煤場和大型集裝箱儲運場的集裝箱卸載、搬運和堆放。

加微信好友

微信小程序

微信公眾號
400-086-9590
139-0380-2779
- 售后服務
-